Проект дома «Ярославль»
Проект дома «Ярославль»
115 м²
3 комнаты
+гостиная
1 этаж
Общие данные
- Объект проектирования: индивидуальный жилой дом
- Раздел проекта: архитектурно-строительные решения (АС)
- Условия строительства: летние условия строительства
- Требования к свойствам грунта: расчетное сопротивление грунта R не менее 10 кПа
Характеристики места строительства, для которых разработан типовой проект
- Расчетная зимняя температура наиболее холодной пятидневки, об 0,92 (СП 131.1330.2018): минус 29°С
- Расчетная внутреняя температура воздуха: 21°С
- Градусо-сутки отопительного периода, ГСОП (СП 131.1330.2018 и СП 50.13330.2012): 5053 °С*сут/год
- Снеговой район, снеговая нагрузка (карты Приложения Ж СП 20.1330.2016): IV район, 200 кгс/м² (2,0 кПа)
- Сейсмичность района строительства по шкале MSK-64 (СП 14.1330.2018): менее 6 баллов
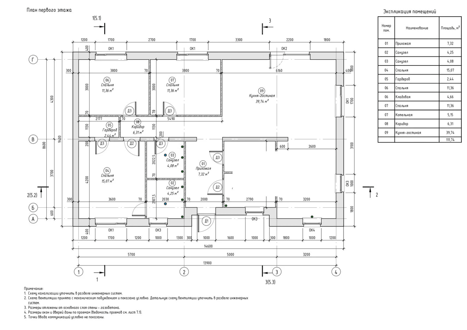
Технико-экономические показатели
- Площадь застройки: 160,32 м²
- Общая площадь здания (сумма площадей помещений): 115 м²
- Площадь кровли здания (включая кровлю террасы и крыльца): 195,65 м²
Объемно-планировочные решения
- Количество наземных этажей: 1
- Наличие подвала или цокольного этажа: нет
- Габаритные размеры дома в плане: 9,4x14,7 м
- Габаритные размеры дома в плане (с учетом террасы и крыльца): 14,1x14,7 м
- Высота первого этажа (от пола до потолка): 2,890 м
- Проектная нулевая отметка: уровень чистого пола 1-го этажа
- Верхняя высотная отметка здания: + 4,842 м
Конструктивные решения
- Наружные стены: кладка из газобетонных блоков торговой марки «ГРАС» размерами 600х250х300 мм / D300 (не выше) / В1,5 (не ниже) ГОСТ 31360-2024 на цементном клеевом растворе для тонкошовной кладки или ППУ-клее; система штукатрного фасада — 5 мм.
- Внутренние несущие стены: кладка из газобетонных блоков торговой марки «ГРАС» размерами 600х250х200 мм / D500 (не ниже) / В3,5 (не ниже) ГОСТ 31360-2024 на цементном клеевом растворе для тонкошовной кладки или ППУ-клее.
- Перегородки: кладка из газобетонных блоков торговой марки «ГРАС» 600x250x100 мм (150) / В2,5 / ГОСТ 31360-2024 на цементном клеевом растворе для тонкошовной кладки или ППУ-клее.
- Вид фундамента: монолитный ленточный фундамент / плитный фундамент.
- Перекрытие чердачное: по деревянным балкам с теплоизоляцией эковатой.
- Конструкция крыши: двускатная
Смотреть видео
Проект реализован в 2025 году из энергоэффективного блока D300 B2.0
Экономические показатели по проекту дома «Просто дом»
Стоимость фундамента
| Наименование | Единица измерения | Количество по проекту | Стоимость, руб. | Примечание |
|---|---|---|---|---|
| Фундамент дома + терраса и крыльцо с навесом | м³ | 10,56 | 93 023 | Рекомендуемый запас 5% |
| Терраса и крыльцо, Теплоизоляция отмостки, террасы и крыльца, Отмостка, Отсыпка котлована, Гидроизоляция первого ряда кладки и выравнивающий слой | м³ | 2,30 | 93 889 | Рекомендуемый запас 5% |
| Итого: | 186 913 |
Стоимость несущих стен и перегородки по проекту
| Наименование материала | Использование в конструкции | Единица измерения | Количество по проекту | Замена на альтернативный материал | Кол-во в единицах | Цена за единицу | Стоимость, руб. | Примечание |
|---|---|---|---|---|---|---|---|---|
| АГБ D300 (В2.0) 600х300х250 мм | Наружные стены | м³ | 36,72 | 36,72 | 6 950 | 255 204 | рекомендуемый запас 5% | |
| АГБ D500 (В2.5) 600х75х250 мм | Обкладка монолитного пояса | м³ | 2,06 | П-образный блок 600x300x250, шт. | 82 | 660 | 54 120 | рекомендуемый запас 5% |
| Клей для тонкошовной кладки | Кладка стен и перегородок | меш. | 53,00 | Клей Пена ГРАС, баллон | 23 | 630 | 14 490 | клей тонкошовный 355 р.*53 меш. = 18 815руб. |
| СППу, М175, 498х115х248 мм | Внутренняя несущая стена | м³ | 3,05 | Блоки D500, В3,5 600х200х250 мм | 5,4 | 7150 | 38 610 | рекомендуемый запас 5% |
| СППо, М175, 498х70х248 мм | Перегородки | м³ | 6,85 | Перегородки D500, В2,5 600х100х250 мм | 9 | 7150 | 64 350 | рекомендуемый запас 5% |
| Перегородка кухня D500, В2,5 600х150х250 мм | 1,8 | 7150 | 12 870 | рекомендуемый запас 5% | ||||
| Итого: | 439 644 |
Стоимость кровельных работ
| Наименование | Единица измерения | Количество по проекту | Стоимость, руб. | Примечание |
|---|---|---|---|---|
| Крыша дома | м² | 173,90 | 271 949 | По рекомендации производителя |
| Крыльцо | м² | 7,95 | 15 160 | По рекомендации производителя |
| Терраса | м² | 12,68 | 19 703 | По рекомендации производителя |
| Итого: | 306 812 |
Стоимость работ по общей отделке дома
| Наименование материала | Единица измерения | Количество по проекту | Стоимость, руб. | Примечание |
|---|---|---|---|---|
| Отделка пола тип 1 ламинат | м² | 99,94 | 124 350 | Рекомендуемый запас 5% |
| Отделка пола тип 2 (керамическая плитка по слою клея) | м² | 14,00 | 29 854 | Рекомендуемый запас 10% |
| Пол дома + стяжка | м³ | 9,07 | 147 826 | Рекомендуемый запас 5% |
| Отделка внутренняя и наружная | меш. | 112,00 | 160 234 | Рекомендуемый запас 5% |
| Теплоизоляция первого ряда кладки | м³ | 0,81 | 8 080 | Рекомендуемый запас 5% |
| Армирование ГБ кладки, Перемычки, Монолитный пояс, Перекрытие, утеплитель | м.п. | 46,00 | 179 734 | Рекомендуемый запас 15%, при длине прутов 6 м — 20 % |
| Дверь входная / Дверной блок межкомнатный | шт. | 1,00 | 88 000 | — |
| Окна в сборе + светопрозрачное заполнение | м² | 24,73 | 340 000 | — |
| Натяжной потолок | м² | 112,39 | 91 200 | По рекомендации производителя |
| Итого: | 1 169 278 |
Стоимость по инженерным работам
| Работы | Стоимость, руб. | Примечание |
|---|---|---|
| Водоснабжение + канализация | 82 850 | По рекомендации производителя |
| Котельная, теплые полы + водопровод | 83 350 | По рекомендации производителя |
| Электрика | 50 129 | По рекомендации производителя |
| Вентиляция | 26 000 | По рекомендации производителя |
| Итого: | 242 329 |
Стоимость по работам техники
| Работы | Стоимость, руб. |
|---|---|
| Техника (бетононасос, трактор, кран, доставка) | 196 500 |
| Итого: | 196 500 |
Другие статьи



